Yew Tree Barn is a beautifully converted barn, located in the heart of the Dedham Vale, boasting outdoor private heated swimming pool which open from May to September.
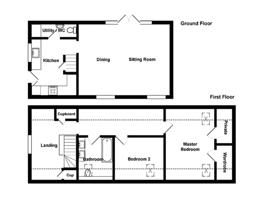
Ground Floor:
Living/dining room: Smart TV, French Doors Leading To Garden
Kitchen: Electric Oven, Induction Hob, Microwave, Fridge/Freezer, Dishwasher, Coffee Machine
Utility Room: Washer Dryer
Separate Toilet.
First Floor:
Bedroom 1: Kingsize (5ft) Bed
Bedroom 2: Zip And Link 2 x Single (2ft 6in) Beds
Bathroom: Bath With Shower Over, Heated Towel Rail, Toilet
Living/dining room: Smart TV, French Doors Leading To Garden
Kitchen: Electric Oven, Induction Hob, Microwave, Fridge/Freezer, Dishwasher, Coffee Machine
Utility Room: Washer Dryer
Separate Toilet.
First Floor:
Bedroom 1: Kingsize (5ft) Bed
Bedroom 2: Zip And Link 2 x Single (2ft 6in) Beds
Bathroom: Bath With Shower Over, Heated Towel Rail, Toilet
Electric central heating, electricity, bed linen, towels and Wi-Fi included. Travel cot and highchair. Welcome pack. Enclosed rear garden with terrace, garden furniture and barbecue. Outdoor heated swimming pool (private, 9m x 6m, depth 0.9m x 1.9m, Open from May-September). Private parking for 3 cars. No smoking.
Set in the grounds of a rare house painted by John Constable stands a newly converted barn. Not just a dwelling; it’s a conversation starter, a retreat that fosters a deep appreciation for the beauty of life in an Area of Outstanding Natural Beauty. From here guests share their experiences exploring the nearby hiking trails and meandering through the charming villages that dot the landscape. Being slightly elevated on the edge of a small village with access to a secluded private swimming pool, makes for a standout friends and family getaway. With tasteful interior design, including large and impressive artworks, the barn is aesthetically pleasing, enjoys beautiful light and is extremely comfortable and well equipped. Two beautiful bedrooms are located on first floor, with the family bathroom. The well-equipped kitchen is perfect for preparing meals at home. Don’t worry, for those preferring not to cook, Higham village has two pubs, a post office, bakery and local take away facilities.
Beneath mature trees at the rear is a large paved outdoor terrace, flanked by wooden trellis, providing a private space to enjoy al fresco dining and sipping your morning coffee, enveloped in the crisp, clean air of the countryside. The outdoor heated swimming pool has a target temperature of 26°C/79°F and kept in use from the early May to mid-September and offers great family enjoyment. Imagine lazy days spent basking in the warmth of the water, surrounded by the sights and sounds of nature.
Be sure to bring your walking boots; having many excellent walking trails and footpaths to explore locally. Other attractions include Rowley Grove a nature reserve which is classed as an ancient woodland. Also within easy distance are many events and festivals, hosted throughout the summer, which includes Aldeburgh carnival, Bure Music Festival, Festival of Wheels being just a few to be enjoyed. Why not enjoy a day at the races, Higham Point to Point racecourse hosts a few events during race season. Has you can see Yew Tree Barn is a popular choice with so many returning guests, having a unique blend of history and contemporary luxury comforts, it becomes a sanctuary for relaxation and connection.
Beneath mature trees at the rear is a large paved outdoor terrace, flanked by wooden trellis, providing a private space to enjoy al fresco dining and sipping your morning coffee, enveloped in the crisp, clean air of the countryside. The outdoor heated swimming pool has a target temperature of 26°C/79°F and kept in use from the early May to mid-September and offers great family enjoyment. Imagine lazy days spent basking in the warmth of the water, surrounded by the sights and sounds of nature.
Be sure to bring your walking boots; having many excellent walking trails and footpaths to explore locally. Other attractions include Rowley Grove a nature reserve which is classed as an ancient woodland. Also within easy distance are many events and festivals, hosted throughout the summer, which includes Aldeburgh carnival, Bure Music Festival, Festival of Wheels being just a few to be enjoyed. Why not enjoy a day at the races, Higham Point to Point racecourse hosts a few events during race season. Has you can see Yew Tree Barn is a popular choice with so many returning guests, having a unique blend of history and contemporary luxury comforts, it becomes a sanctuary for relaxation and connection.
































